Ens preocupa la teva privacitat A pisos.com utilitzem cookies pròpies i de tercers per donar un servei satisfactori mitjançant cookies tècniques, de personalització i per a fins analítics. prem AQUÍ per més informació. Pots acceptar totes les cookies prement el botó "acceptar" o configurar-les o rebutjar el seu ús prement
Acceptar Rebutjar totes Configurar
Promoció de nova construcció en venda a ESCAS
  • 4HabitacionsHabs
  • 4Banys
  • 67planta
  • 513 m2
2.470.000 €
Sol.licita més informació de l'immoble
Envia
Truqui'ns ara
call
376739690

Promoció de nova construcció en venda a ESCAS

ESCAS (La Massana)

REF.: 080126 2.470.000 €
Contacta ara
Contacta ara 376739690
call
Truca
email
Contactar
call
Truca
email
Contactar
Detalls de l'immoble
  • Preu 2.470.000 €
  • Referència 080126
  • Zona ESCAS
  • Pàrquing
  • Accepten mascota
  • Jardí
  • Calefacció
  • Ascensor
  • Terrassa
  • Habitacions 4
  • Banys 4
  • Planta 67
  • Superficie total 513 m2
  • Superfície útil 450 m2
  • Certificació energètica
    Classificació 548
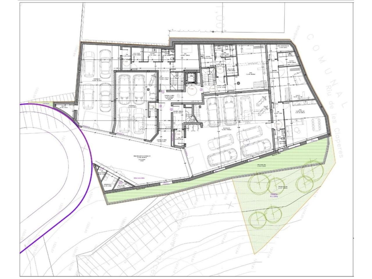
  • Descripció Promoció de nova construcció de 3 habitatges a la zona residencial d'Escas. L'habitatge 3 es compon de zona de garatge de 298 m2 aproximadament que dóna accés mitjançant escala a l'habitatge que ocupa tota la planta àtic. Un ascensor comunitari comunica igualment les plantes garatge amb la planta àtic. La planta garatge consta de rebedor que dóna accés mitjançant una escala a la planta superior de l'habitatge. Un sas dóna accés al garatge amb una capacitat de 6/7 vehicles i diverses motos, sala polivalent, safareig, lavabo, gimnàs i local tècnic. La sala polivalent té accés a un espai exterior d'aproximadament 165 m2. L'habitatge que es situa a la planta àtic d'una superfície construïda d'aproximadament 195 m2 es distribueix de la següent manera: rebedor-distribuïdor que separa la zona de dia de la zona de nit. La zona de dia consta d'una àmplia sala d'estar amb cuina amb illa totalment equipada d'electrodomèstics, i accés a terrassa exterior de 62 m2 aprox. La zona de nit consta de 4 dormitoris dobles i tres banys amb dutxa. Totes les dependències són exteriors amb llum natural. Els acabats són d'alta qualitat (parquet de fusta natural, domòtica, sistema de cocció Bora amb extractor incorporat, electrodomèstics integrats de marca Siemens o similar, sanitaris suspesos de la marca Villeroy Boch, calefacció amb terra radiant)
Telèfon

376739690

Adreça electrònica

immobiliariaordino@andorra.ad

Simula la teva hipoteca

Calcula